Разделы презентаций


ИНДИВИДУАЛЬНЫЙ ПРОЕКТ

СРОКИ ИСПОЛНЕНИЯС 17.04.20 по 23.04.20 – 1 лист ГЕНЕРАЛЬНЫЙ ПЛАНС24.04.20 по 30.04.20 – 2 лист ЭСКИЗ ДОМАС 1.05.20 по 6.05.20 – 3 лист ФАСАДЫ ЗДАНИЯС 7.05.20 по 13.05.20 – 4 лист

Слайды и текст этой презентации

Слайд 1ИНДИВИДУАЛЬНЫЙ ПРОЕКТ
МОЙ ДОМ
Задание и описание можно посмотреть в вк -

https://vk.com/club193899736 или на почте класса, так же и сдаем

работу или в ВК или на почту nasyrova_ev_74@mail.ru
ИНДИВИДУАЛЬНЫЙ ПРОЕКТМОЙ ДОМЗадание и описание можно посмотреть в вк - https://vk.com/club193899736  или на почте класса, так

Слайд 2СРОКИ ИСПОЛНЕНИЯ

С 17.04.20 по 23.04.20 – 1 лист ГЕНЕРАЛЬНЫЙ ПЛАН
С24.04.20

по 30.04.20 – 2 лист ЭСКИЗ ДОМА
С 1.05.20 по 6.05.20

– 3 лист ФАСАДЫ ЗДАНИЯ
С 7.05.20 по 13.05.20 – 4 лист ПЛАНЫ ЭТАЖЕЙ
С 14.05.20 по 20.05.20 – 5 лист ТИТУЛЬНЫЙ



СРОКИ ИСПОЛНЕНИЯС 17.04.20 по 23.04.20 – 1 лист ГЕНЕРАЛЬНЫЙ ПЛАНС24.04.20 по 30.04.20 – 2 лист ЭСКИЗ ДОМАС

Слайд 8ПРОЕКТ «МОЙ ДОМ»
Проект состоит из 5 листов формата А3 (если

нет в наличии, то склеиваем 2 листа формата А4)
1 лист

ГЕНЕРАЛЬНЫЙ ПЛАН – это план участка местности по которому мы мы можем судить о расположении построек на участке и зеленых насаждений

2 лист ЭСКИЗ ДОМА – объемное изображение дома

3 лист ФАСАДЫ ЗДАНИЯ – вид спереди и сбоку дома

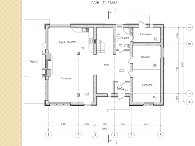
4 лист ПЛАНЫ ЭТАЖЕЙ – вид сверху здания, разрезанного на уровне середины окна

5 лист ТИТУЛЬНЫЙ ЛИСТ – информация о разработчике проекта

ПРОЕКТ «МОЙ ДОМ»Проект состоит из 5 листов формата А3 (если нет в наличии, то склеиваем 2 листа

Слайд 9СРОКИ СДАЧИ ПРОЕКТА
С 17.04.20 по 23.04.20 – 1 лист ГЕНЕРАЛЬНЫЙ

ПЛАН

С24.04.20 по 30.04.20 – 2 лист ЭСКИЗ ДОМА

С 1.05.20 по

6.05.20 – 3 лист ФАСАДЫ ЗДАНИЯ

С 7.05.20 по 13.05.20 – 4 лист ПЛАНЫ ЭТАЖЕЙ

С 14.05.20 по 20.05.20 – 5 лист ТИТУЛЬНЫЙ
СРОКИ СДАЧИ ПРОЕКТАС 17.04.20 по 23.04.20 – 1 лист ГЕНЕРАЛЬНЫЙ ПЛАНС24.04.20 по 30.04.20 – 2 лист ЭСКИЗ

Слайд 10ЭСКИЗ ДОМА
2 ЛИСТ

ЭСКИЗ ДОМА2 ЛИСТ

Слайд 15ФАСАДЫ ДОМА
ЛИСТ
ГЛАВНЫЙ ФАСАД - ЭТО ВИД СПЕРЕДИ ДОМА
БОКОВОЙ ФАСАД –

ЭТО ВИД СБОКУ ДОМА (БОК БЕРЕМ ЛЮБОЙ)

ФАСАДЫ ДОМАЛИСТГЛАВНЫЙ ФАСАД - ЭТО ВИД СПЕРЕДИ ДОМАБОКОВОЙ ФАСАД – ЭТО ВИД СБОКУ ДОМА (БОК БЕРЕМ ЛЮБОЙ)

Слайд 18ПЛАН ЭТАЖЕЙ
4 ЛИСТ

ПЛАН ЭТАЖЕЙ4 ЛИСТ

Обратная связь

Если не удалось найти и скачать доклад-презентацию, Вы можете заказать его на нашем сайте. Мы постараемся найти нужный Вам материал и отправим по электронной почте. Не стесняйтесь обращаться к нам, если у вас возникли вопросы или пожелания:

Email: Нажмите что бы посмотреть 

Что такое TheSlide.ru?

Это сайт презентации, докладов, проектов в PowerPoint. Здесь удобно  хранить и делиться своими презентациями с другими пользователями.


Для правообладателей

Яндекс.Метрика