Разделы презентаций


Лекция тема № 4/1: Учебно-тренировочные комплексы. Организация, обеспечение и

Содержание

Вопрос №1. Назначение, виды, устройство, оснащение учебно-тренировочного комплекса ГДЗС.

Слайды и текст этой презентации

Слайд 1Лекция тема № 4/1: «Учебно-тренировочные комплексы. Организация, обеспечение и функционирование учебно-тренировочных

комплексов ГДЗС»

Лекция тема № 4/1: «Учебно-тренировочные комплексы. Организация, обеспечение и функционирование учебно-тренировочных комплексов ГДЗС»

Слайд 2Вопрос №1. Назначение, виды, устройство, оснащение учебно-тренировочного комплекса ГДЗС.

Вопрос №1. Назначение, виды, устройство, оснащение учебно-тренировочного комплекса ГДЗС.

Слайд 3 Учебно-тренировочный комплекс — система отдельно стоящих объектов, предназначенных для

совершенствования навыков работы личного состава подразделений ГПС в сложных условиях

и психологической подготовки к действиям по тушению пожаров.
Учебно-тренировочный комплекс — система отдельно стоящих объектов, предназначенных для совершенствования навыков работы личного состава подразделений ГПС

Слайд 4 В состав УТК входят: теплодымокамера, огневая полоса психологической подготовки пожарных,

огневой полигон, спортивный зал с подсобными помещениями, площадка для 100-метровой

полосы с препятствиями, подземный резервуар емкостью 50 м3 и пожарный гидрант с площадкой для стоянки пожарных автомобилей, площадка с учебной башней,.
В состав УТК входят: теплодымокамера, огневая полоса психологической подготовки пожарных, огневой полигон, спортивный зал с подсобными помещениями,

Слайд 5Теплодымокамера (далее - ТДК) предназначена для тренировки газодымозащитников в изолирующих

дыхательных аппаратах в зоне с непригодной для дыхания средой.



ТДК должна

обеспечивать проведение занятий в зоне с непригодной для дыхания средой с имитацией условий, близких к реальному пожару или аварийной ситуации и позволяющих применять средства тушения, формировать психологическую готовность к действиям в различных условиях обстановки с включением элементов риска и проявления максимальных физических и эмоциональных нагрузок.
Теплодымокамера (далее - ТДК) предназначена для тренировки газодымозащитников в изолирующих дыхательных аппаратах в зоне с непригодной для

Слайд 10Огневая полоса психологической подготовки пожарных (далее ОПППП)

ОПППП представляют собой

комплексы, состоящие из различных объектов, препятствий и учебно-служебных ситуаций, связанных

в единую цепь и ставящих обучаемых перед необходимостью практически решать сложные задачи в процессе выполнения отдельных профессиональных действий.

В ходе регулярных занятий на ОПППП у обучаемых формируются следующие качества:
- эмоционально-волевая устойчивость, самообладание, решительность, настойчивость, смелость, ловкость, готовность к неожиданностям, выносливость, находчивость, расчетливость;
- устойчивость к риску, опасностям, неожиданностям, огню, дыму, различным помехам;
- быстрота мышления, ориентировки и реакции на изменения обстановки на боевых позициях и участках тушения пожара;
- профессиональные навыки и умения по спасанию людей в особо опасных ситуациях и т.д.
Огневая полоса психологической подготовки пожарных (далее ОПППП) ОПППП представляют собой комплексы, состоящие из различных объектов, препятствий и

Слайд 12Огневой полигон (далее - полигон)

предназначен для практической подготовки личного

состава дежурных караулов, имеющих квалификацию «газодымозащитник» и «спасатель», к действиям

в зоне с непригодной для дыхания средой при огневых воздействиях, повышенной влажности и непредвиденных обстоятельствах, связанных с пожаром и техногенной аварией.

Оснащение полигона обеспечивает проведение следующих видов тренировок:
одновременная тренировка газодымозащитников (спасателей) в составе звена (отделения);
создание условий, приближенных к условиям работы на пожаре или при ликвидации аварий;
тушение условного пожара с подачей огнетушащего вещества от автоцистерны, внутреннего пожарного крана или иного источника
Огневой полигон (далее - полигон) предназначен для практической подготовки личного состава дежурных караулов, имеющих квалификацию «газодымозащитник» и

Слайд 14Вопрос № 2 Основные требования к организации и обеспечения функционирования

учебно-тренировочных комплексов ГДЗС.

Вопрос № 2 Основные требования к организации и обеспечения функционирования учебно-тренировочных комплексов ГДЗС.

Слайд 15Требования к составу ТДК
В состав комплекса рекомендуется включать следующие помещения:
комнату

руководителя занятий (пультовую);
пост медицинского контроля;
контрольный пост ГДЗС;
учебный класс;
задымляемое помещение, включающее

в себя: лабиринт (тренажер ориентации) и участок технологической зоны (с возможностью обеспечить тепловую нагрузку);
тренажерную зону;
кабинет психологической разгрузки;
кабинет начальника комплекса;
предкамеру, совмещенную с постом безопасности;
помещение электроснабжения комплекса;
помещение общеобменной и приточно-вытяжной вентиляции;
тамбур-шлюз (с избыточным подпором воздуха);
санузел и душевую комнаты;
гардеробную;
кладовую для хранения инвентаря.

Срок службы на основное оборудование комплекса должен быть не менее 10 лет.
Требования к составу ТДКВ состав комплекса рекомендуется включать следующие помещения:комнату руководителя занятий (пультовую);пост медицинского контроля;контрольный пост ГДЗС;учебный

Слайд 17Схема лабиринтов, плотность дыма, звуковые и световые эффекты могут изменяться

с пульта руководителя, в процессе проведения занятий.
Дымокамера (тренажер ориентации)
Можно

смоделировать 16 различных маршрутов движения звена!

Подготовка газодымозащитника

Схема лабиринтов, плотность дыма, звуковые и световые эффекты могут изменяться с пульта руководителя, в процессе проведения занятий.

Слайд 18Тренажер ориентации подразделяется на три элемента, что позволяет ползать, ходить

и лазать.
Подготовка газодымозащитника

Тренажер ориентации подразделяется на три элемента, что позволяет ползать, ходить и лазать.Подготовка газодымозащитника

Слайд 19Подготовка газодымозащитника
«Бесконечная лестница»
«Беговая дорожка»
«Ударный молот»

Подготовка газодымозащитника«Бесконечная лестница» «Беговая дорожка» «Ударный молот»

Слайд 20Подготовка газодымозащитника
Требования к задымляемым помещениям

Тренировки в условиях задымления должны быть

направлены на освоение газодымозащитниками правильных действий в составе звена в

различных условиях обстановки, формирование психологической и физической готовности. Необходимо стремиться к созданию такой учебной обстановки, которая была бы максимально приближена к реальным условиям работы на пожаре, способствовала достижению максимальных физических и эмоционально-волевых нагрузок.
При использовании средств имитации (очагов пожаров, последствий взрывов, обрушений и других опасных факторов, повреждений приборов и трубопроводов и др.), необходимо применять меры, исключающие возможность возникновения аварийных ситуаций, повреждений и несчастных случаев.
Подготовка газодымозащитникаТребования к задымляемым помещениям	Тренировки в условиях задымления должны быть направлены на освоение газодымозащитниками правильных действий в

Слайд 21В состав оборудования задымляемого помещения рекомендуется включать следующие элементы и

системы:
лабиринт (тренажер ориентации) двух (трех) уровней;
участок технологической зоны

(с возможностью обеспечить тепловую нагрузку);
систему задымления с использованием безопасного дыма;
систему двухсторонней связи;
систему видеонаблюдения и дублирующей системы слежения;
систему создания звуковых и световых эффектов;
систему приточно-вытяжной вентиляции.

Шумовое сопровождение при тренировке должно обеспечивать звуки, имитирующие:
обрушение конструкций;
взрыв паров или газов;
шум выходящего из трубопровода под давлением газа;
крики «пострадавшего» и т.п.
В состав оборудования задымляемого помещения рекомендуется включать следующие элементы и системы:лабиринт (тренажер ориентации) двух (трех) уровней;участок

Слайд 22Примерный перечень средств имитации включает:
узкие лазы;
наклонный участок с постепенно изменяющейся

высотой;
качающийся участок пола;
ступеньку-пандус;
имитатор «очаг пожара»;
имитатор «вспышка»;
имитатор «пострадавший».

Примерный перечень фрагментов технологического

оборудования включает:
тренажер «резервуар»;
тренажер «участок трубопровода»;
тренажер «рубильник»;
тренажер «задвижка».
Примерный перечень средств имитации включает:узкие лазы;наклонный участок с постепенно изменяющейся высотой;качающийся участок пола;ступеньку-пандус;имитатор «очаг пожара»;имитатор «вспышка»;имитатор «пострадавший».Примерный

Слайд 23 Стены, потолок, пол и полотнища дверей должны быть выполнены

из материалов, допускающих их мойку водой.
Стены, потолок, пол и

полотнища дверей помещения должны иметь необходимую термо- и дымоизоляцию.
Для применения во время тренировки в задымляемых помещениях огнетушащих веществ пол должен иметь необходимую гидроизоляцию и уклон в сторону трапов для сбора воды.
Задымляемое помещение должно иметь не менее двух выходов. Над выходами с внутренней стороны устанавливаются световые указатели с надписью «ВЫХОД», включаемые с пульта управления.
Перед входом в задымляемые помещения следует устраивать незадымляемые тамбур-шлюзы (с избыточным подпором воздуха) для исключения проникновения дыма в другие помещения комплекса.
Стены, потолок, пол и полотнища дверей должны быть выполнены из материалов, допускающих их мойку водой. Стены,

Слайд 24 Требования к тренажерной зоне
Тренировка в тренажерной зоне

имеет целью выработать у тренирующихся высокий уровень выносливости, подвижности, физической

работоспособности, тепловой адаптации к условиям повышенной температуры.
Технические возможности тепловой зоны должны обеспечивать температурный режим в пределах 20-40±2°С. Регулировка температуры должна проводиться плавно в заданных пределах с автоматической поддержкой.
Для осуществления контроля за тренировкой в стене, разделяющей тренажерную зону и комнату руководителя занятий (пультовую), делается смотровое окно (размером не менее 1x1 м).
Для управления тренировкой в помещении предусматривается система двухсторонней связи между тренирующимися и руководителем тренировки.
Стены, потолок, пол и полотнище дверей помещения должны быть выполнены из материалов, допускающих их мойку водой.
Пол должен иметь уклон для обеспечения сбора воды в дренажную систему.
Стены, потолок, пол и полотнище дверей камеры должны иметь необходимую термоизоляцию.
Переход из тренажерной зоны в задымляемое помещение осуществляется через тамбур-шлюз.
Требования к тренажерной зоне  Тренировка в тренажерной зоне имеет целью выработать у тренирующихся высокий уровень

Слайд 25Оборудование тренажерной зоны
Количество тренажеров (эргометров), размещаемых в помещении, подбирается

исходя из среднего числа тренируемых. Тренажеры (эргометры) должны быть общего

типа назначения.
- Беговая дорожка. Угол подъема и скорость дорожки должны регулироваться плавно в заданных пределах. Разрешенный вес пользователя должен быть не менее 150 кг.
- Вертикальный эргометр типа «Ударный молот». При тренировке на этом тренажере должен подниматься и опускаться груз весом 25 кг канатом на роликах.
- Тренажер «Бесконечная лестница». На этом тренажере должны выполняться упражнения (проводиться тренировки) имитирующие подъем по лестнице. Цепь ступенек должна начинать двигаться только при нагрузке за счет веса человека. Световой датчик должен автоматически отключать лестницу при проскоке ноги человека мимо ступеньки.
- Тренажер «Велоэргометр». На данном тренажере тренирующиеся определяют при заданных нагрузках выносливость и физическую работоспособность. Разрешенный вес пользователя должен быть не менее 150 кг.
Оборудование тренажерной зоны Количество тренажеров (эргометров), размещаемых в помещении, подбирается исходя из среднего числа тренируемых. Тренажеры (эргометры)

Слайд 26Тренажерный отсек (теплокамера) (температурный режим от +20 до +40 ºС)
Подготовка

газодымозащитника

Тренажерный отсек (теплокамера) (температурный режим от +20 до +40 ºС) Подготовка газодымозащитника

Слайд 27Требования к комнате руководителя занятий (пультовой)
Оборудование

пультовой должно обеспечивать постоянный контроль за тренировкой,

поддержание двусторонней связи, а также управление маршрутами движений в системе лабиринта и вносить изменения в условия проведения тренировок.

Примерный перечень оснащения и оборудования пультовой включает:
- пульт управления, который предназначен для управления системами слежения, вентиляции, поддержания заданной температуры, контроля за работой тренажеров, задымлением, звуковыми и световыми эффектами и т.д.;
- система регистрации и передачи физиологических сигналов по радиоканалу;
- рабочий стол;
- стулья;
- стенд служебной документации.
Температурный режим в помещении должен обеспечиваться в пределах 18..,25 °С, при относительной влажности не более 70%.
Требования к комнате руководителя занятий (пультовой)   Оборудование  пультовой  должно  обеспечивать  постоянный

Слайд 28Комната руководителя тренировок
Подготовка газодымозащитника

Комната руководителя тренировок Подготовка газодымозащитника

Слайд 29Требования к посту медицинского контроля
Оборудование поста должно обеспечивать контроль

за физическим состоянием тренирующихся и возможности экстренного оказания первой доврачебной

медицинской помощи.
Обязательное оснащение поста включает:
- аптечка (набор) для оказания первой доврачебной помощи;
- аппарат искусственной вентиляции легких;
- медицинский тонометр;
- кушетка для отдыха;
- рабочий стол;
- стул.
Пол должен быть нескользким и допускающим его мойку водой.
Требования к посту медицинского контроля Оборудование поста должно обеспечивать контроль за физическим состоянием тренирующихся и возможности экстренного

Слайд 30Во время тренировки контролируются показатели давления и пульса каждого участника


Пост медицинского контроля
Подготовка газодымозащитника

Во время тренировки контролируются показатели давления и пульса каждого участника Пост медицинского контроляПодготовка газодымозащитника

Слайд 31Требования к предкамере, совмещенной с постом безопасности
Предкамера должна располагаться

в непосредственной близости от тренажерной зоны и задымляемого помещения и

обеспечивать условия для размещения резервного звена и отдыха тренирующихся, а также для работы контрольного поста ГДЗС.
Оснащения предкамеры включает:
скамью для отдыха;
стенд документации;
рабочий стол поста безопасности;
стул;
Требования к предкамере, совмещенной с постом безопасности Предкамера должна располагаться в непосредственной близости от тренажерной зоны и

Слайд 32Требования к контрольному посту газодымозащитной службы
Контрольный пост должен

обеспечивать проведение проверок изолирующих дыхательных аппаратов, замену кислородных (воздушных) баллонов

и регенеративных патронов.

Обязательное оснащение поста включает:
- приборы контроля параметров работы изолирующих дыхательных аппаратов;
- набор специальных ключей;
- прибор проверки качества воздуха;
- прибор контроля давления в баллонах;
- столы для проведения проверок;
- стеллажи для хранения запасных баллонов и регенеративных патронов;
- стенд документации;
- рабочий стол;
- комплект рабочей документации поста безопасности;
- плакаты по устройству и правилам технического обслуживания изолирующих дыхательных аппаратов.
Требования к контрольному посту газодымозащитной службы  Контрольный пост должен обеспечивать проведение проверок изолирующих дыхательных аппаратов, замену

Слайд 34Требования к учебному классу
Учебный класс должен быть оснащен столами

и стульями на 20-25 посадочных мест, компьютерной системой обучения и

контроля знаний, наглядными пособиями и стендами с информацией об устройстве изолирующих дыхательных аппаратов, о правилах работы в них и техническом обслуживании, методиках проведения расчетов параметров работы в зоне с непригодной для дыхания средой, планом-схемой комплекса и др.
Требования к кабинету психологической разгрузки
Кабинет психологической разгрузки предназначен для восстановления и отдыха личного состава после тренировок в зоне с непригодной для дыхания средой.
Требования к вспомогательным помещениям
К вспомогательным помещениям относятся:
- кабинет начальника комплекса; помещение электроснабжения комплекса;
- помещение общеобменной и приточно-вытяжной вентиляции;
- туалетную и душевую комнаты;
- тамбур и тамбур-шлюз;
- гардеробную;
- кладовую для хранения инвентаря.
Требования к вспомогательным помещениям определяются в каждом конкретном случае исходя из решаемых задач подготовки газодымозащитников, санитарно-гигиенических требований и требований охраны труда.
Требования к учебному классу Учебный класс должен быть оснащен столами и стульями на 20-25 посадочных мест, компьютерной

Слайд 36Требования к системе электрооборудования
Система электрооборудования комплекса должна быть выполнена

в соответствии с Правилами устройства электроустановок и обеспечивать полную безопасность

при их эксплуатации. Она включает в себя следующие виды освещения:
рабочее (общее и местное) - 220 В; аварийное - 220 В; эвакуационное - 220 В; ремонтное - не более 36 В.

В задымляемых помещениях, включая лестничные клетки, необходимо предусматривать аварийное освещение, для чего на стенах устанавливаются светильники с зеркальными лампами, которые улучшают видимость в задымленных помещениях в случае экстренной эвакуации тренирующихся. Аварийное освещение подключается к двум независимым источникам питания.
Требования к системе электрооборудования Система электрооборудования комплекса должна быть выполнена в соответствии с Правилами устройства электроустановок и

Слайд 37Требования к системам задымления и вентиляции
Задымление должно

создаваться только в тренировочных помещениях. В

качестве дымообразующих средств используются имитаторы и составы, не вызывающие отравления и ожогов.
Шумовые эффекты не должны превышать допустимых норм.
Для удаления дыма из тренировочных помещений должны быть предусмотрены три обособленные системы дымоудаления, состоящие из вытяжной, приточной и аварийной установок каждая. Производительность каждой системы должна обеспечивать десятикратный воздухообмен в обслуживаемом помещении.
Аварийная принудительная вентиляция подключается к основному и независимому резервному источникам питания и должна обеспечивать в задымляемых помещениях в течение 2 мин с момента включения системы условия устойчивого визуального контакта.

Дополнительные требования
Помещения для тренировок должны быть оборудованы системами контроля за местонахождением тренирующихся.
Требования к системам задымления и вентиляции  Задымление  должно  создаваться  только  в

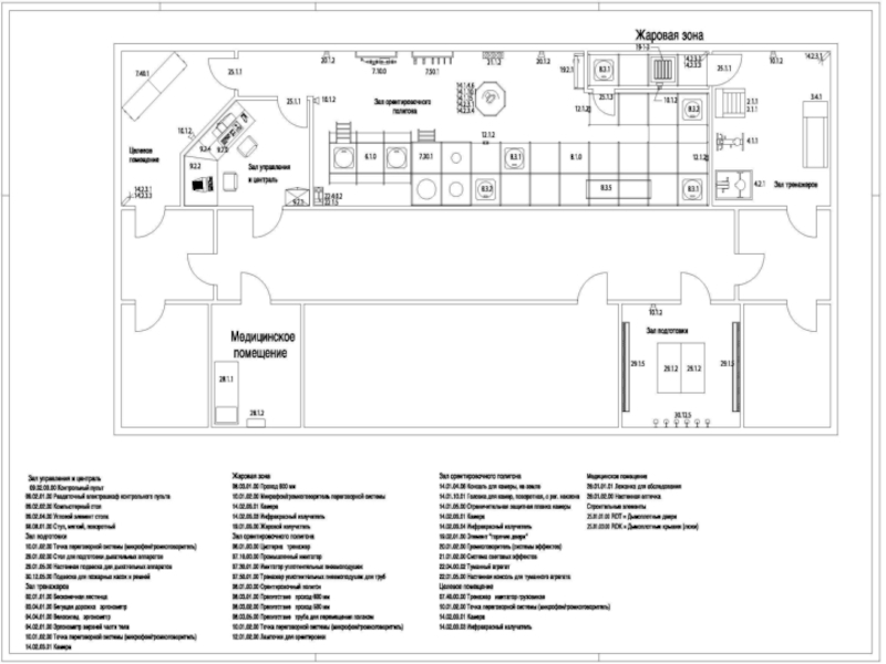
Слайд 38Таблица 1 Рекомендуемые нормы площадей для отдельных помещений комплекса

Таблица 1 Рекомендуемые нормы площадей для отдельных помещений комплекса

Слайд 39Огневая полоса психологической подготовки пожарных

Огневая полоса психологической подготовки пожарных

Слайд 40Снаряд № 1. Металлический фрагмент трехэтажного дома
Снаряд № 2. Лабиринт
Снаряд

№ 3. Подземная открытая емкость с горящей жидкостью
Снаряд № 4.

Фрагмент эстакады с горловиной от емкости железнодорожной цистерны
Снаряд № 5. Трап над приямком с горящей жидкостью
Снаряд № 6. Кабельный коллектор
Снаряд № 7. Металлическая площадка эстакады с поврежденным технологическим оборудованием
Снаряд № 8 Мишень


Снаряд № 1. Металлический фрагмент трехэтажного домаСнаряд № 2. ЛабиринтСнаряд № 3. Подземная открытая емкость с горящей

Слайд 42Для усложнения условий обучения, их быстрого изменения необходимо иметь легко

трансформируемые объекты: заборы, небольшие эстакады, мишени, перегородки, огневые барьеры, качающиеся

мосты, трубы и т.п. Их можно устанавливать в разных местах ОПППП, между стационарными объектами, создавая участки повышенной трудности их проходимости. Целесообразно, чтобы на ОПППП можно было тренировать как отдельных пожарных, так и отделение, и караул в целом.
Если ОПППП делается короткой, то можно размещать учебные объекты в линию. Но лучше образовывать из них круг, овал, квадрат или прямоугольник с размещением в центре водоема. Превосходство такого размещения определяется удобством организации и проведения занятий, контроля за действиям обучаемых и возможностью повторного многократного прохождения ОПППП, что важно для выработки выносливости к устойчивости личного состава.
Для приближения условий к реальным целесообразно в непосредственной близости устанавливать мощные громкоговорящие установки, с помощью которых воспроизводятся различные звуки, сопутствующие тушению пожара: шум горения, треск обрушений, ветра, команды, крики о помощи, стоны пострадавших, крики собравшейся толпы, шум уличного движения, а также специальные звуковые помехи (неприятные звуки, бессвязные фразы, хаотические команды и т.п.), оказывающие раздражающее действие, требующие большой концентрации внимания и воли для решения поставленной задачи. Повышению психологического эффекта способствует установка ярких прожекторов, установок, имитирующих дождь, ветер.
Для усложнения условий обучения, их быстрого изменения необходимо иметь легко трансформируемые объекты: заборы, небольшие эстакады, мишени, перегородки,

Слайд 43Огневой полигон
В состав помещений полигона входят:
- тренировочная площадка (крыша);
-

тренировочное помещение «Участок лабиринта»;
- огневая зона, включающая в

себя следующие помещения:
- тренировочное помещение «Промышленный участок»;
- тренировочное помещение «Жилая зона» с тамбуром;
- пультовая (помещение руководителя занятий).
Огневой полигонВ состав помещений полигона входят:-  тренировочная площадка (крыша);-  тренировочное помещение «Участок лабиринта»;-  огневая

Слайд 44Подготовка газодымозащитника

Подготовка газодымозащитника

Слайд 45Безопасность при проведении тренировок обеспечивается:
- системой задымления с использованием

безопасного дыма;
- системой видеонаблюдения и видеозаписи;
- системой воздухообмена;
-

системой «Аварийного отключения» (кнопки «Аварийный Стоп» размещены в тренировочных помещениях в доступных местах);
- системой газового анализа концентрации горючего газа в помещениях (20% подается предупредительный сигнал, 30% и более автоматически отключается подача газа и включается аварийная система).
Безопасность при проведении тренировок обеспечивается:-  системой задымления с использованием безопасного дыма;-  системой видеонаблюдения и видеозаписи;-

Слайд 46В состав огневой зоны входят:
- тренировочное помещение «Промышленный участок»;
-

тренировочное помещение «Жилая зона» с тамбуром. Тренировочное помещение «Промышленный

участок» Оборудование помещения позволяет отработку приемов и способов по тушению различных моделируемых очагов пожара на промышленных объектах.
В состав оборудования помещения входят:
- огневой модуль «Газовые баллоны»;
- огневой модуль «Участок трубопровода»;
- огневой модуль «Винтовая лестница»;
- модуль «Щит электропитания»;
- модуль «Учебный пожарный кран»;
- дымогенераторная установка;
- камера видеонаблюдения;
- датчик температуры;
- датчик газового анализа;
- система «Аварийного отключения».
В состав огневой зоны входят:-  тренировочное помещение «Промышленный участок»;-  тренировочное помещение «Жилая зона» с тамбуром.

Слайд 48Тренировочное помещение «Жилая зона» с тамбуром.

В тамбуре расположено следующее оборудование:
-

дымогенераторная установка;
- камера видеонаблюдения;
- система «Аварийного отключения»;
-

датчик газового анализа.

Тренировочное помещение «Жилая зона» В состав оборудования помещения входят:
- огневой модуль «Горящая дверь»;
- огневой модуль «Горящая кровать»;
- огневой модуль «Телевизор»;
- огневой модуль «Потолочный огонь»;
- модуль «Шкаф для одежды»;
- камера видеонаблюдения;
- датчик температуры;
- датчик газового анализа;
- система «Аварийного отключения».
Тренировочное помещение «Жилая зона» с тамбуром.В тамбуре расположено следующее оборудование:-  дымогенераторная установка;-  камера видеонаблюдения;-

Слайд 50Учебная башня

Учебные башни должны отвечать следующим требованиям:
вертикальная фасадная

сторона учебной башни обшивается строганными досками, является рабочей и

на ней предусматривается:
по два и более оконных проема в каждом этаже (кроме первого) размером 1,1 м х 1,87 м;
расстояние от окна до обреза стены не менее 65 см;
ширина простенка не менее 60 см;
ширина подоконника 38 - 40 см;
высота подоконника от уровня пола 80 см (+/- 5 см);
высота подоконника второго этажа от поверхности земли 4,25 м, расстояние между подоконниками 2, 3, 4 этажей - 3,3 м;
на рабочей стороне учебной башни не должно быть никаких отверстий (кроме оконных проемов) и выступающих частей, под окнами второго этажа на 5 см ниже уровня 3 ступеньки штурмовой лестницы с фасадной стороны башни набивается брусок сечением 6 x 6 см;
под окнами второго этажа до земли разрешается набивать на фасадную
часть листовое железо, резину, пластик или фанеру;
в каждом этаже башни должны быть площадки глубиной (от рабочей
стороны) не менее 1 м 50 см, причем каждая площадка должна иметь выход на стационарную лестницу, имеющую ограждение и установленную внутри башни на одной из ее нерабочих сторон;
учебная башня должна быть оборудована надежными страхующими
приспособлениями;
Учебная башняУчебные башни должны отвечать следующим требованиям:вертикальная  фасадная  сторона  учебной башни обшивается строганными досками,

Слайд 52перед рабочей стороной башни в грунте

устраивается предохранительная подушка толщиной не менее 1 м, шириной

от фасадной стороны 4 м, выступающая за габариты башни не менее чем на 1 м;
предохранительная подушка указанной толщины делается из засыпки, состоящей на 50% из опилок, которая насыпается слоем толщиной 50 см на пружинистое основание, толщина основания – 50 см, между пружинистым основанием и засыпкой делается прокладка из рогож, для отвода воды из приямка делается дренаж или другое устройство, обеспечивающее сток воды, яма предохранительной подушки может быть оборудована устройством для отогревания материалов подушки в холодное время года (паропровод).
Перед проведением занятий (соревнований) на учебной башне верхний слой предохранительной подушки должен быть взрыхлен. Обновление предохранительной подушки проводится не реже одного раза в 24 месяца и оформляется актом.
Перед учебной башней устраивается площадка длиной не менее 50 м, шириной (при учебной башне на 4 ряда окон) не менее 10 м.
Учебная башня должна быть оборудована ставнями с запорами для закрывания окон, а также щитами для предохранения подушки от попадания снега.
перед  рабочей  стороной  башни  в грунте  устраивается предохранительная подушка толщиной не менее

Слайд 53Страхующие устройства учебных башен перед использованием необходимо подвергать проверке. Замок

должен прочно удерживать веревку, и после снятия нагрузки на нем

не должно быть повреждений и заметной остаточной деформации.
Учебная башня обеспечивается страхующими устройствами из расчета одно устройство на один ряд окон по вертикали, которое ежегодно испытывается в установленном порядке.
При использовании учебной башни для сушки и мойки пожарных рукавов шахта для сушки и помещение для мойки отделяются от помещений учебной башни сплошной стеной. Выход на верхнюю рабочую площадку шахты и в помещение мойки рукавов допускается через помещение учебной башни. Верхняя рабочая площадка оборудуется лебедкой для подъема рукавов, высотой 1,25 м. Шахта оборудуется пусковой аппаратурой, которая размещается внизу и на верхней площадке. Башенная сушилка должна иметь калорифер или другие приборы для подогрева воздуха. Развешивать рукава для сушки нужно равномерно по всему сечению шахты.
Крепление рукавов должно обеспечиваться приспособлениями, позволяющими простое и быстрое их закрепление и освобождение, а также исключающее самопроизвольное падение рукавов вниз.
Запрещается использовать учебные башни для хранения оборудования и различных предметов, кроме пожарных рукавов, подвешенных для сушки.
Страхующие устройства учебных башен перед использованием необходимо подвергать проверке. Замок должен прочно удерживать веревку, и после снятия

Слайд 54Вопрос № 3 Правила охраны труда при проведении занятий в

учебно-тренировочных комплексах ГДЗС.

Вопрос № 3 Правила охраны труда при проведении занятий в учебно-тренировочных комплексах ГДЗС.

Слайд 55Меры безопасности при проведении тренировок в зоне с непригодной для

дыхания средой:
1. Руководитель занятий и газодымозащитники обязаны строго соблюдать

в ходе тренировки требования Наставления по газодымозащитной службе и Правил по охране труда в подразделениях ГПС МЧС России.
2. Руководитель занятий несет ответственность за обеспечение мер безопасности при работе газодымозащитников в изолирующих дыхательных аппаратах. Он обязан изучить места проведения тренировок, проверить исправность используемых средств и устройств, разработать, при необходимости, дополнения к настоящей инструкции, организовать изучение мер безопасности с газодымозащитниками.
3. Тренировочные занятия должны проводиться под контролем медицинского работника.
4. К тренировке допускаются газодымозащитники, прошедшие соответствующее обучение и сдавших зачеты на право ведения действий в НДС.
5. Критерием предельной физической нагрузки принято считать частоту сердечных сокращений (ЧСС) до 170 уд/мин.
6. Запрещается пользоваться неисправными имитационными средствами, тренажерами, другими электротехническими средствами для проведения тренировок, а также нарушать правила их применения.
7. Применяемые пожарно-техническое оборудование и аварийно-спасательный инструмент должны быть испытаны.
8. Для обеспечения контроля над работой звеньев газодымозащитной службы у места входа в непригодную для дыхания среду на каждое звено выставляется пост безопасности. Место расположения поста безопасности определяется руководителем занятий в непосредственной близости от места входа звена в непригодную для дыхания среду (на свежем воздухе).
9. На посту безопасности должен вестись учет работы звена по установленной форме в журнале учета работающих звеньев газодымозащитной службы.
10. У входа в непригодную для дыхания среду выставить страхующее звено газодымозащитной службы.
11. Тренировка газодымозащитников должна быть прекращена, если:
имеются жалобы газодымозащитников на плохое самочувствие (срыв дыхания, судороги, головокружение) или на неисправность изолирующего дыхательного аппарата; после выполнения нескольких упражнений ЧСС превышает 160 уд/ мин. и не становится ниже этого предела в течение 3-5 минут отдыха.
12. Звено (отделение) газодымозащитной службы должно продвигаться в непригодной для дыхания среде кратчайшим путём. Если планировка помещений неизвестна, то следует передвигаться вдоль капитальных стен или стен с окнами, аналогично передвижению по маршам лестничной клетки. Чтобы не потерять ориентир и лучше запомнить пройденный путь, необходимо, следуя вдоль стены, касаться ее локтем или внешней стороной кисти руки.
13. Продвигаться и работать необходимо в составе звена, постоянно поддерживать друг с другом связь, особенно внимательно следить за расходом кислорода (воздуха) в баллонах. Контроль осуществляется по показанию манометра того газодымозащитиика, у которого запас кислорода (воздуха) в изолирующем дыхательном аппарате на момент ухода от поста безопасности был наименьшим.
14. Если при движении к очагу пожара (месту работы) газодымозащитники касались стены правой рукой, то при возвращении назад они должны ее касаться левой рукой.
15. В случае отравления газодымозащитников продуктами горения и при получении теплового удара необходимо немедленно вызвать скорую медицинскую помощь, а до ее прибытия оказать доврачебную помощь.
Меры безопасности при проведении тренировок в зоне с непригодной для дыхания средой:1.  Руководитель занятий и газодымозащитники

Слайд 56Спасибо за внимание

Спасибо за внимание

Обратная связь

Если не удалось найти и скачать доклад-презентацию, Вы можете заказать его на нашем сайте. Мы постараемся найти нужный Вам материал и отправим по электронной почте. Не стесняйтесь обращаться к нам, если у вас возникли вопросы или пожелания:

Email: Нажмите что бы посмотреть 

Что такое TheSlide.ru?

Это сайт презентации, докладов, проектов в PowerPoint. Здесь удобно  хранить и делиться своими презентациями с другими пользователями.


Для правообладателей

Яндекс.Метрика