Разделы презентаций


Общие принципы проектирования промышленных предприятий

Содержание

Типы объектов проектированияновое строительство; расширение; реконструкция; техническое перевооружение действующих предприятий.

Слайды и текст этой презентации

Слайд 1Общие принципы проектирования промышленных предприятий

Общие принципы проектирования промышленных предприятий

Слайд 2Типы объектов проектирования
новое строительство;
расширение;
реконструкция;
техническое перевооружение действующих предприятий.

Типы объектов проектированияновое строительство; расширение; реконструкция; техническое перевооружение действующих предприятий.

Слайд 3Задачи
экономические;
техни­ческие;
организационные.

Задачиэкономические; техни­ческие; организационные.

Слайд 4Предпроектная подготовка

Предпроектная подготовка

Слайд 5Проектная документация разрабатывается проектировщиком - организацией, имеющей лицензию на проектную

деятельность.
В разработке и реализации проекта, кроме проектной организации (генеральный подрядчик),

могут при­нимать участие специализированные предприятия: строительные, монтажные, пусконаладочные и т.п., которые именуются субподрядчиками.
Проектная документация разрабатывается проектировщиком - организацией, имеющей лицензию на проектную деятельность.В разработке и реализации проекта, кроме проектной

Слайд 6Обоснование инвестиций в строительство объекта
определение мощности производства;
выбор метода (технологии) производства

и типа оборудования;
составление принципиальной технологической схемы;
расчет материальных и тепловых балансов

производства;
выбор площадки для строительства;
технико-экономические показатели производства;
задание на проектирование и исходные материалы.

Обоснование инвестиций в строительство объектаопределение мощности производства;выбор метода (технологии) производства и типа оборудования;составление принципиальной технологической схемы;расчет материальных

Слайд 7Выбор площадки для строительства
ориентировочная потребность в сырье;
месторасположение источников сырья;
размещение рынков

сбыта готового продукта;
потребность в энергии (тепловой и электрической);
количество и качество

технологической воды;
ориентировочные размеры строительной площадки с учетом перспективы расширения объекта;
потребность в рабочей силе (по квалификациям);
количество и состав отходов, способы их обезвреживания.
Выбор площадки для строительстваориентировочная потребность в сырье;месторасположение источников сырья;размещение рынков сбыта готового продукта;потребность в энергии (тепловой и

Слайд 8Определяющие технико-экономические показатели
себестоимость продукции;
годовой выпуск товарной продукции, прибыль;
производитель­ность

труда одного работающего, численность персонала, годовой фонд заработной платы;
общая

сметная стоимость строительства, удельные капитальные вло­жения;
производственные фонды (в том числе основные и оборотные), рентабельность фондов;
срок окупаемости капитальных вложений, фондоотдача;
годовая потребность в основных видах сырья, энергоресурсов (электроэнергии, пара), воде.

Определяющие технико-экономические показателисебестоимость продукции; годовой выпуск товарной продукции, прибыль; производитель­ность труда одного работающего, численность персонала, годовой фонд

Слайд 9Задание на проектирование и исходные материалы

Задание на проектирование и исходные материалы

Слайд 10Задание
место расположения объекта;
обоснование для проектирования;
вид строительства;
стадийность проектирования;
вариантная и конкурсная разработка;
особые

условия строительства;

Заданиеместо расположения объекта;обоснование для проектирования;вид строительства;стадийность проектирования;вариантная и конкурсная разработка;особые условия строительства;

Слайд 11производственная программа, основные технико-экономические показатели объекта;
качество, конкурентные способности и экологические

параметры продукции;
технология, режим предприятия;
архитектурно-строительные, объемно-планировочные и конструктивные решения;

производственная программа, основные технико-экономические показатели объекта;качество, конкурентные способности и экологические параметры продукции;технология, режим предприятия;архитектурно-строительные, объемно-планировочные и конструктивные

Слайд 12выделение очередей и пусковых комплексов, перспективы расширения предприятия;
природоохранные меры и

мероприятия;
режим безопасности и гигиене труда;
инженерно-технические мероприятия по гражданской обороне и

предупре­ждению чрезвычайных ситуаций;
опытно-конструкторские и научно-исследовательские работы.
выделение очередей и пусковых комплексов, перспективы расширения предприятия;природоохранные меры и мероприятия;режим безопасности и гигиене труда;инженерно-технические мероприятия по

Слайд 13Исходные материалы
обоснования инвестиций строительства объекта;
акт выбора земельного участка для строительства

объекта;
технические условия на присоединение проектируемого объекта к источникам снабжения, инженерным

сетям и ком­муникациям;
исходные данные по оборудованию, в том числе индивидуального изготовления;
необходимые данные по выполненным научно-исследовательским (НИР) и опытно-конструкторским работам (ОКР), связанным с созданием технологических процессов и оборудования;
технические характеристики продукции будущего предприятия;
другие необходимые материалы.

Исходные материалыобоснования инвестиций строительства объекта;акт выбора земельного участка для строительства объекта;технические условия на присоединение проектируемого объекта к

Слайд 14Состав проекта

Состав проекта

Слайд 15общая пояснительная записка;
генеральный план и транспорт;
технологические решения;
архитектурно-строительные решения;
охрана окружающей среды;
сметная

документация;
эффективность инвестиций.

общая пояснительная записка;генеральный план и транспорт;технологические решения;архитектурно-строительные решения;охрана окружающей среды;сметная документация;эффективность инвестиций.

Слайд 16Принципы проектирования промышленного предприятия

Принципы проектирования промышленного предприятия

Слайд 17Принцип объективности
Принцип прогрессивности
Принцип перспективности
Принцип комплексности
Принцип нормативности
Принцип

последовательности
Принцип вариантности
Принцип экономичности
Принцип комфортности
Принцип территориальности
Принцип

эстетичности
Принцип долговечности

Принцип объективностиПринцип прогрессивности Принцип перспективности Принцип комплексности Принцип нормативности Принцип последовательности Принцип вариантности Принцип экономичности Принцип комфортности

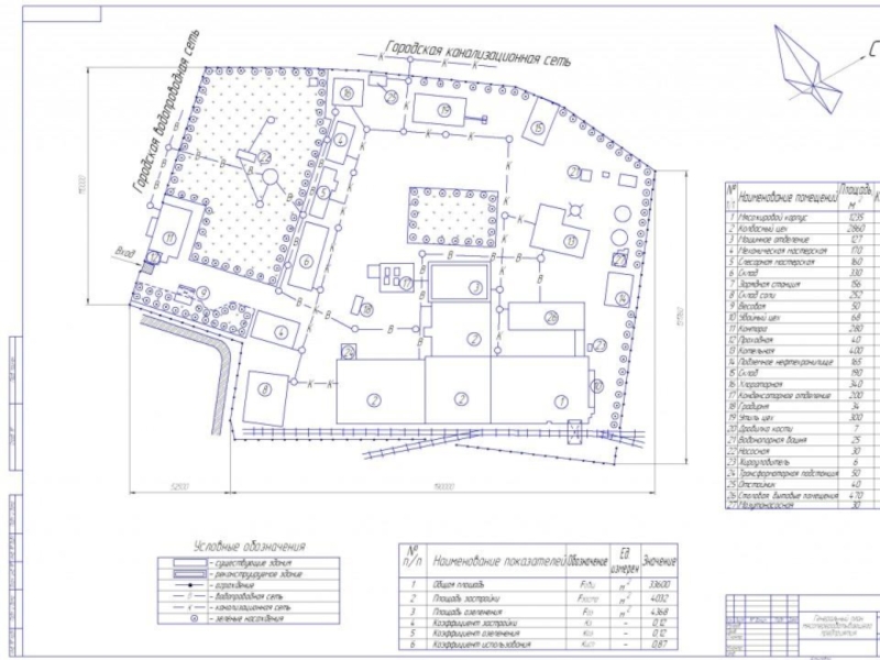
Слайд 18Ситуационный и генеральный планы

Ситуационный и генеральный планы

Слайд 19Ситуационный план
это часть проекта, где указывают размещение проектируемого предприятия относительно

насе­ленного пункта, окружающей территории, а также других объектов, имеющих с

ним непосредственные технологические, транспортные и инженерно-технические связи.
Этот план изображается в масштабе 1:5000, 1:10000, 1:25000.
Ситуационный планэто часть проекта, где указывают размещение проектируемого предприятия относительно насе­ленного пункта, окружающей территории, а также других

Слайд 21Генеральный план
это часть проектной документации, в которой содержатся решения задач

размещения (плани­ровки) завода или комбината в промышленном узле, включая транспортные

коммуникации и инженерные сети для этого узла, а также размещения цехов, сооружений, транспортных коммуникаций и инженерных сетей внутри территории проектируемого предприятия
Генеральный планэто часть проектной документации, в которой содержатся решения задач размещения (плани­ровки) завода или комбината в промышленном

Слайд 22На генеральном плане промышленного предприятия в масштабе 1:500, 1:1000 или

1:5000 изображают:
размещение всех зданий и сооружений;
распределение цехов по группам;
ширину противопожарных

и санитарных разрывов между зданиями;
проезды и въезды в цеха, автодороги и железнодорожные пути;
инженерные сети;
ограждение территории с указанием въезда и проходных на территорию завода;
размещение пожарных гидрантов, зоны озеленения, розу ветров

На генеральном плане промышленного предприятия в масштабе 1:500, 1:1000 или 1:5000 изображают:размещение всех зданий и сооружений;распределение цехов

Слайд 24Зонирование территории проектируемого предприятия
предзаводская, в которой располагаются вспомогательные здания (административные

корпуса, стоянки пассажирского транспорта, столовая и т.п.);
производственная, где находятся основные

и вспомогательные цеха;
подсобная, предназначенная для энергетических объектов и прокладки инженерных коммуникаций;
складская с сортировочными станциями и депо.

Зонирование территории проектируемого предприятияпредзаводская, в которой располагаются вспомогательные здания (административные корпуса, стоянки пассажирского транспорта, столовая и т.п.);производственная,

Слайд 25Строительное проектирование

Строительное проектирование

Слайд 26Естественные (каменные) материалы
Природные каменные материалы из горных пород различного происхождения:
Дробленые

(щебень, искусственный песок)
Пиленые (блоки, крупные камни)
Рваные – метод взрыва(бутовый камень

и др.)
Молотые – методом помола горной породы
Естественные (каменные) материалыПриродные каменные материалы из горных пород различного происхождения:Дробленые (щебень, искусственный песок)Пиленые (блоки, крупные камни)Рваные –

Слайд 27Керамические материалы
Искусственные каменные материалы и изделия, получаемые из глин и

их смесей путем их формования, сушки, обжига
Стеновые КМ:
Керамический кирпич
Пустотелые камни
Облицовочные

КМ:
Кирпич и камни керамические лицевые
Плиты и плитки фасадные
Ковровая керамика
Керамические изделия для внутренней отделки
Санитарно-технические изделия
Прочие КИ


Керамические материалыИскусственные каменные материалы и изделия, получаемые из глин и их смесей путем их формования, сушки, обжигаСтеновые

Слайд 28Минеральные вяжущие вещества
порошкообразные вещества, которые при смешивании с водой дают

пластичное тесто, способное с течением времени под влиянием физико-химических процессов

затвердевать и переходить в камневидное состояние
Минеральные вяжущие веществапорошкообразные вещества, которые при смешивании с водой дают пластичное тесто, способное с течением времени под

Слайд 29Воздушные вяжущие могут затвердевать и длительно сохранять прочность только на

воздухе.

К ним относятся:
воздушная известь,
гипсовые и магнезиальные вяжущие,


жидкое стекло
Воздушные вяжущие могут затвердевать и длительно сохранять прочность только на воздухе. К ним относятся: воздушная известь, гипсовые

Слайд 30Известь, как воздушная, так и гидравлическая, применяется при штукатурных и

каменных работах, а также при приготовлении низкомарочных бетонов.

Известь, как воздушная, так и гидравлическая, применяется при штукатурных и каменных работах, а также при приготовлении низкомарочных

Слайд 31Гипсовые вяжущие широко применяются в строительной индустрии. Их добавляют в

известково-песчаные растворы для ускорения схватывания и увеличения прочности.
гипсокартонные листы,


искусственный мрамор,
полимергипс.
Гипсовые вяжущие широко применяются в строительной индустрии. Их добавляют в известково-песчаные растворы для ускорения схватывания и увеличения

Слайд 32Магнезиальные вяжущие, каустический магнезит и каустический доломит, при затворении водой

твердеют медленно и имеют небольшую прочность, поэтому их затворяют растворами

хлористого или сернокислого магния.
Магнезиальные вяжущие, каустический магнезит и каустический доломит, при затворении водой твердеют медленно и имеют небольшую прочность, поэтому

Слайд 33Жидким стеклом называют растворимые соли кремниевой кислоты. В практике чаще

используют силикат натрия. Его применяют для изготовления огнезащитных красок, для

предохранения естественных каменных материалов от выветривания, для получения кислотоупорного и жаростойкого цементов, а также для уплотнения (силикатизации) грунтов.

Жидким стеклом называют растворимые соли кремниевой кислоты. В практике чаще используют силикат натрия. Его применяют для изготовления

Слайд 34Гидравлические вяжущие твердеют и сохраняют свою прочность как на воздухе,

так и в воде. Однако начальный период твердения (процесс схватывания),

как правило, должен протекать на воздухе или в среде, изолированной от воды. К гидравлическим вяжущим относятся все вицы цементов, гидравлическая известь
Гидравлические вяжущие твердеют и сохраняют свою прочность как на воздухе, так и в воде. Однако начальный период

Слайд 35Строительные растворы
затвердевшая смесь вяжущих, мелких заполнителей, воды и добавок

Строительные растворызатвердевшая смесь вяжущих, мелких заполнителей, воды и добавок

Слайд 36Бетоны, железобетоны и изделия из них
искусственные каменные материалы, полу­чаемые при

затвердевании тщательно перемешанной и уплотненной смеси из вяжущего вещества, мелкого

и крупного заполнителей, затворителя (воды)
Бетоны, железобетоны и изделия из нихискусственные каменные материалы, полу­чаемые при затвердевании тщательно перемешанной и уплотненной смеси из

Слайд 37Бетоны классифицируют по следующим признакам:
основному назначению:
конструкционные
специальные
виду вяжущего:
на

цементном вяжущем
на шлаковых вяжущих
на известковых вяжущих
на гипсовых

вяжущих
на специальных вяжущих
Бетоны классифицируют по следующим признакам: основному назначению: конструкционные специальныевиду вяжущего:на цементном вяжущем на шлаковых вяжущих на известковых

Слайд 38виду заполнителей:
на плотных заполнителях
на пористых заполнителях
на специальных заполнителях
структуре:
плотные


поризованные
ячеистые
крупнопористые

виду заполнителей:на плотных заполнителях на пористых заполнителяхна специальных заполнителях структуре:плотные поризованные ячеистыекрупнопористые

Слайд 39Железобетон
строительный материал, в котором сочетается совместная работа бетона и арматурной

стали

Железобетонстроительный материал, в котором сочетается совместная работа бетона и арматурной стали

Слайд 40Сборные элементы
изготовляют на заводах железобетонных изделий в многократно используемых формах

и доставляют к месту строительства, где из них возводят здания

и сооружения
Сборные элементыизготовляют на заводах железобетонных изделий в многократно используемых формах и доставляют к месту строительства, где из

Слайд 41Конструкции из монолитного железобетона
изготовляют непосредственно на месте строительства

Конструкции из монолитного железобетонаизготовляют непосредственно на месте строительства

Слайд 42Металлы
Чёрные - наиболее широко используют сталь
Цветные - используют главным образом

алюминиевые сплавы с небольшими добавками меди, магния, кремния и марганца

– дюралюмины
МеталлыЧёрные - наиболее широко используют стальЦветные - используют главным образом алюминиевые сплавы с небольшими добавками меди, магния,

Слайд 43Материалы с использованием древесины
Арболит – разновидность легкого бетона, в состав

которого входит минеральное вяжущее (различные марки портландцемента) и органический заполнитель

– измельченная древесина из отходов лесозаготовок, лесопиления и деревообработки.
Материалы с использованием древесиныАрболит – разновидность легкого бетона, в состав которого входит минеральное вяжущее (различные марки портландцемента)

Слайд 44Фибролит – спрессованные и затвердевшие плиты из древес­ины и минеральных

вяжущих.

Фибролит – спрессованные и затвердевшие плиты из древес­ины и минеральных вяжущих.

Слайд 45Ксилолит – искусственный строительный материал, состоящий из смеси магнезиального вяжущего

и древесных опилок с добавлением тонкодисперсных минеральных веществ (талька, асбеста,

мраморной муки) и щелочестойких пигментов

Ксилолит – искусственный строительный материал, состоящий из смеси магнезиального вяжущего и древесных опилок с добавлением тонкодисперсных минеральных

Слайд 46Кровельные и гидроизоляционные материалы
Рулонные кровельные материалы
Рубероид
Стеклорубероид
Наплавленный рубероид
Пергамин
Толь гидроизоляционный
Гидроизоляционные материалы
Гидроизол
Изол
Бризол
Фольгоизол

Кровельные и гидроизоляционные материалыРулонные кровельные материалыРубероидСтеклорубероидНаплавленный рубероидПергаминТоль гидроизоляционный Гидроизоляционные материалыГидроизолИзолБризолФольгоизол

Слайд 47Стекло
Стеклоблоки
Профильное строительное стекло (стеклопрофилит)
Стеклопакеты
Шлакоситаллы
Ситаллы

СтеклоСтеклоблокиПрофильное строительное стекло (стеклопрофилит) Стеклопакеты ШлакоситаллыСиталлы

Обратная связь

Если не удалось найти и скачать доклад-презентацию, Вы можете заказать его на нашем сайте. Мы постараемся найти нужный Вам материал и отправим по электронной почте. Не стесняйтесь обращаться к нам, если у вас возникли вопросы или пожелания:

Email: Нажмите что бы посмотреть 

Что такое TheSlide.ru?

Это сайт презентации, докладов, проектов в PowerPoint. Здесь удобно  хранить и делиться своими презентациями с другими пользователями.


Для правообладателей

Яндекс.Метрика