Разделы презентаций


неоклассицизм

Содержание

Проект жилого дома для СвердловскаИ. А. Грушенко 1948 г.

Слайды и текст этой презентации

Слайд 1неоклассицизм
Вторая половина 1940-х – 1950-е гг.

неоклассицизмВторая половина 1940-х – 1950-е гг.

Слайд 2Проект жилого дома для Свердловска
И. А. Грушенко 1948 г.

Проект жилого дома для СвердловскаИ. А. Грушенко 1948 г.

Слайд 3Проект застройки улиц 8 Марта и Куйбышева
Архитектор П. Поликанов

Проект застройки улиц 8 Марта и КуйбышеваАрхитектор П. Поликанов

Слайд 4Проект жилого дома с двухзальным кинотеатром в Орджоникидзевском р-не
Архитектор П.

Д. Деминцев

Проект жилого дома с двухзальным кинотеатром в Орджоникидзевском р-неАрхитектор П. Д. Деминцев

Слайд 6Горсовет Свердловска

Горсовет Свердловска

Слайд 7проекты здания горсовета в Свердловке 1944

проекты здания горсовета в Свердловке 1944

Слайд 8до 1947 года

до 1947 года

Слайд 15Дворец культуры металлургов
1953
Нижний Тагил
Архитектор В.В. Емельянов

Дворец культуры металлургов 1953 Нижний ТагилАрхитектор В.В. Емельянов

Слайд 23Драматический театр
1955
Нижний Тагил
Архитектор А.Тарасенко

Драматический театр 1955 Нижний ТагилАрхитектор А.Тарасенко

Слайд 30Дворец культуры Уралвагонзавода
1958
Нижний Тагил
Архитектор Э.М. Залесская

Дворец культуры Уралвагонзавода 1958 Нижний ТагилАрхитектор Э.М. Залесская

Слайд 36дворец культуры

дворец культуры

Слайд 37дворец культуры
Краснотурьинск
Ул. К.Маркса, 22а
1950-е

дворец культуры КраснотурьинскУл. К.Маркса, 22а1950-е

Слайд 42Дворец культуры
им. Г.Д. Агаркова
город Верхняя Салда
Свердловская область

Дворец культуры им. Г.Д. Агарковагород Верхняя СалдаСвердловская область

Слайд 45Дворец культуры
завод "Урал«
Соликамск (Боровск)

Дворец культуры завод

Слайд 48Дворец культуры г. Краснотурьинск. 1953

Дворец культуры  г. Краснотурьинск. 1953

Слайд 49дворец культуры
Г. Асбест
Ул. Мира 4/3
П.И.Лантратов
1956

дворец культуры Г. АсбестУл. Мира 4/3П.И.Лантратов1956

Слайд 53Богданович
Дворец культуры огнеупорщиков
1950
Г.А.Голубев
П.И. Лантратов

БогдановичДворец культуры огнеупорщиков 1950Г.А.ГолубевП.И. Лантратов

Слайд 60Дворец культуры Уральского алюминиевого завода
Каменск-Уральский
Ул.Алюминиевая, 2
В.В.Емельянов
1950-е

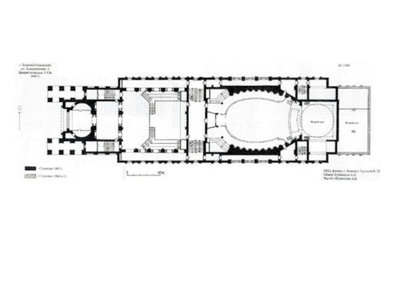
Дворец культуры Уральского алюминиевого заводаКаменск-УральскийУл.Алюминиевая, 2В.В.Емельянов 1950-е

Слайд 61Дворец культуры УАЗа

Дворец культуры УАЗа

Слайд 68Дворец культуры Верх-Исетского завода
Г. Свердловск
Пл. Субботников, 1
В.В.Емельянов

Дворец культуры Верх-Исетского заводаГ. СвердловскПл. Субботников, 1В.В.Емельянов

Слайд 74кинотеатры

кинотеатры

Слайд 75Кинотеатр «Металлург»
1950-е
Г. Северский
Архитектор А.Д.Максимова

Кинотеатр «Металлург»1950-еГ. СеверскийАрхитектор А.Д.Максимова

Слайд 77Кинотеатр "Родина",
Екатеринбург
ул. Бабушкина, 2.
Постороен в 1950-е годы
в 1994

году здание передано Русской Православной церкви
Храм Успения Пресвятой Богородицы

Кинотеатр

Обратная связь

Если не удалось найти и скачать доклад-презентацию, Вы можете заказать его на нашем сайте. Мы постараемся найти нужный Вам материал и отправим по электронной почте. Не стесняйтесь обращаться к нам, если у вас возникли вопросы или пожелания:

Email: Нажмите что бы посмотреть 

Что такое TheSlide.ru?

Это сайт презентации, докладов, проектов в PowerPoint. Здесь удобно  хранить и делиться своими презентациями с другими пользователями.


Для правообладателей

Яндекс.Метрика